Bouwprojecten optimaal coördineren
Efficiënte voorbereiding voor elk bouwproject.
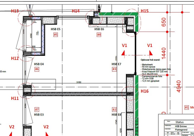
Technische tekeningen
Maken van werktekeningen, controleren em aanpassen.
Stellen van gedetailleerde projectplanningen op om de voortgang van uw bouwproject te waarborgen.
Projectplanning, organiseren, secuur te werk gaan en het overzicht bewaren is essentieel voor het slagen van de uitvoering.
Projectplanning
Werkvoorbereiding
Over ons
F11 Bouwteam coördineert en organiseert bouwprojecten voor een soepele en efficiënte uitvoering binnen budget en tijd.
Onze expertise
Met 25 jaar ervaring als bouwkundig ingenieur zorgen wij voor een optimale samenwerking tussen ontwerp en uitvoering.


Onze Diensten
Professionele coördinatie en organisatie voor een efficiënt bouwproject binnen budget en tijd.
Projectplanning
Wij kunnen zowel planningen opstellen en zorgen dat ze uitgevoerd worden doormiddel van actieve navolging en aansturing van uw projecten


Technische tekeningen
Wij maken, lezen en controleren technische bouwtekeningen voor een succesvolle uitvoering van uw project.
Met 25 jaar ervaring zorgen wij dat al uw bouwvergunning aangevraagd en georganiseerd worden.
Bouw vergunningen




Neem contact met ons op
Wij helpen u graag met uw bouwproject.


